Property Detail

2010 Jacob Street

Gridley CA 95948

$529,000

Status: Active

Property Details

Description

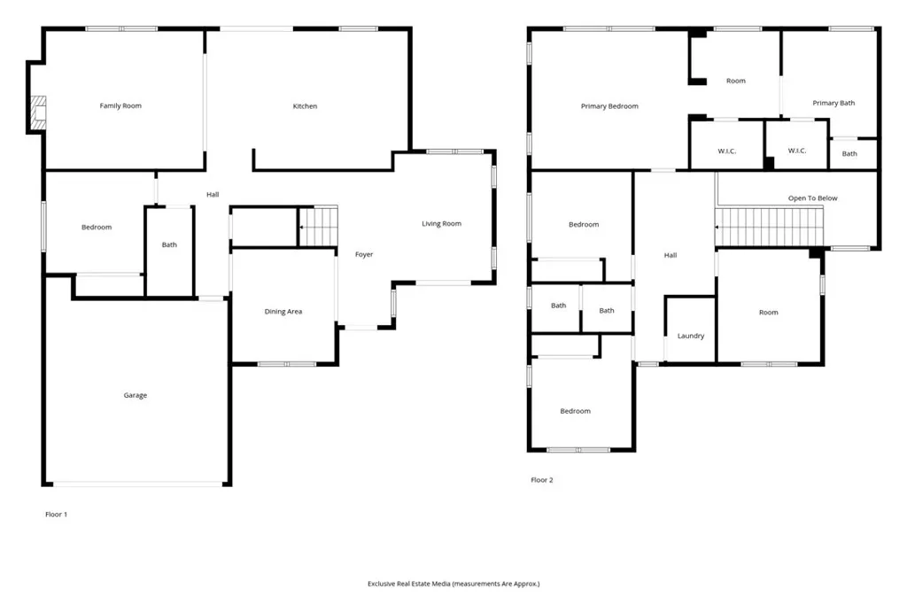
Spacious 4-Bedroom Home with Bonus Rooms & Extra Garage in Eagle Meadows! Welcome to this beautifully upgraded home in the highly sought-after Eagle Meadows subdivision! Located on a desirable corner lot, this expansive property offers over 2,700 sq. ft. of well-designed living space, featuring 4 spacious bedrooms, 2 versatile bonus rooms, and thoughtful upgrades throughout. Enjoy high-end touches like a tile roof and elegant plantation shutters that add timeless style and value. The heart of the home is the impressive U-shaped kitchen, boasting a large center island, abundant cabinetry, and extensive counter spaceperfect for both everyday living and entertaining. This home also includes an additional bonus garage, offering extra room for parking, storage, a workshop, or hobby spacerare and valuable in this area! The flexible layout, including the bonus rooms, provides endless options for a home office, gym, playroom, or guest suite. Outside, the corner lot provides extra privacy and curb appeal, with space to design your dream outdoor living area. Dont miss this exceptional opportunity in one of the areas most desirable neighborhoodsclose to parks, top-rated schools, and local amenities. Schedule your private showing today!

Map Location

Listing provided courtesy of Summerlee Martin of Keller Williams Realty Chico Area. Last updated . Listing information © 2025 SANDICOR.

Contact Us

Send a Message
admin Real estate 9:00 AM - 5:00 PM 9:00 AM - 5:00 PM 9:00 AM - 5:00 PM 9:00 AM - 5:00 PM 9:00 AM - 6:00 PM 9:00 AM - 5:00 PM 9:00 AM - 5:00 PM https://static.royacdn.com/Site-52cd8f66-c005-4ba2-8c82-efeb916fdc84/regal_properties.png Broker Associate # # # https://static.royacdn.com/Site-52cd8f66-c005-4ba2-8c82-efeb916fdc84/regal_properties.png