Property Detail

37900 52nd

Palmdale CA 93552

$499,000

Status: Active

Property Details

Description

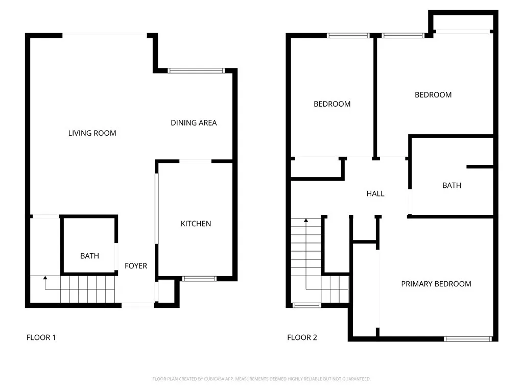
Stunning 5-Bedroom Modern Retreat on Corner Lot - Spacious & Move-In Ready! Nestled on a prime corner lot in a vibrant neighborhood, this breathtaking two-story, 5-bedroom, 3-bathroom home offers luxury, space, and versatility. Perfectly blending modern elegance with functional living, this residence is an entertainer's dream, with a bright and airy open floor plan that invites natural light to flood every corner. The expansive living room boasts vaulted ceilings, abundant windows, and gleaming light wood flooring, creating a warm and inviting atmosphere. The heart of the home is the gourmet kitchen, featuring sleek granite countertops, stainless steel appliances, and seamless flow into the cozy family room. Ascend the grand staircase to discover five generously sized bedrooms, including a luxurious primary suite. The remodeled primary bathroom is a spa-like retreat, complete with a soaking tub, double vanity with quartz countertops, and elegant ceramic tile. Two additional remodeled bathrooms upstairs ensure comfort and style for family or guests, with soft pastel paint tones creating a serene ambiance throughout. Downstairs, a convenient bedroom and full bathroom offer flexibility for guests or multigenerational living. Additional highlights include an indoor laundry room, ample storage, and a design that maximizes space and light. Located just moments from top-rated schools, parks, and shopping, this home offers the perfect blend of suburban tranquility and urban convenience. Don't miss the opportunity to own this move-in-ready home.

Map Location

Listing provided courtesy of Kerie Edmead of Circle Real Estate. Last updated . Listing information © 2025 SANDICOR.

Contact Us

Send a Message
admin Real estate 9:00 AM - 5:00 PM 9:00 AM - 5:00 PM 9:00 AM - 5:00 PM 9:00 AM - 5:00 PM 9:00 AM - 6:00 PM 9:00 AM - 5:00 PM 9:00 AM - 5:00 PM https://static.royacdn.com/Site-52cd8f66-c005-4ba2-8c82-efeb916fdc84/regal_properties.png Broker Associate # # # https://static.royacdn.com/Site-52cd8f66-c005-4ba2-8c82-efeb916fdc84/regal_properties.png