Property Detail

Bush St

San Diego CA 92103

$1,199,900

Status: Active

Property Details

Description

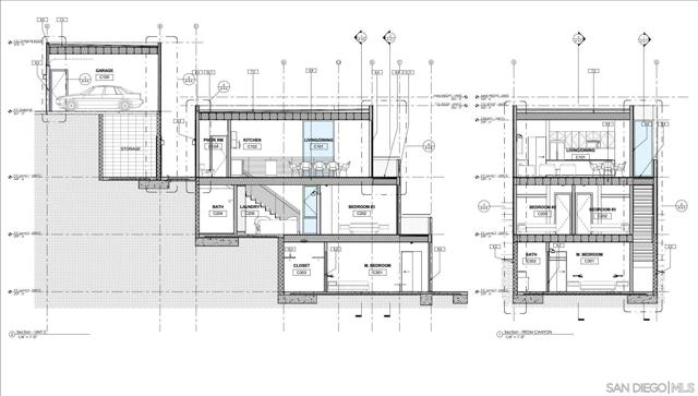
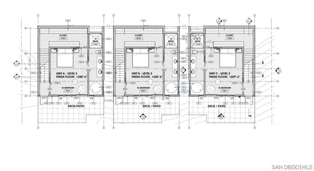
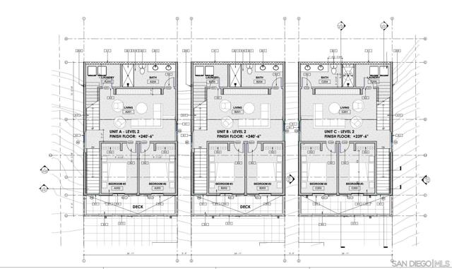
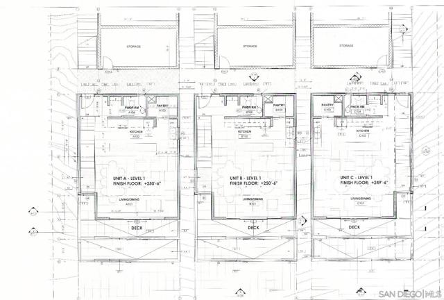
Mission Hills, San Diego, a fantastic development opportunity, especially given its location and potential for stunning views. Here are some key points and considerations for potential buyers or developers: Location and Neighborhood: Mission Hills is known for its historic charm, scenic views, and vibrant community. Its proximity to Downtown San Diego and other urban areas makes it a desirable location. Development Potential: The property offers the opportunity to build 3-6 three-story townhomes, and potentially more, depending on the revised plans. The fact that the lot can accommodate multiple units is a significant advantage for developers looking to maximize their investment. Architectural Plans: While the original architectural plans by Safdie Rabines Architects have expired, the fact that the architects are open to revisiting them provides flexibility for potential buyers. Developing new plans that take advantage of the views and the unique characteristics of the neighborhood could be an exciting prospect. Zoning and Regulations: The zoning designation of MCCPD-MR3000 suggests that the property is zoned for multi-residential development, which aligns with the proposed townhome project. Market and Demand: Understanding the demand for housing in Mission Hills and the broader San Diego area is crucial for assessing the feasibility and potential profitability of project. Overall, this Mission Hills property presents an exciting opportunity for developers to create a unique desirable residential development that capitalizes on the neighborhoods charm! Mission Hills, San Diego, a fantastic development opportunity, especially given its location and potential for stunning views. Here are some key points and considerations for potential buyers or developers: Location and Neighborhood: Mission Hills is known for its historic charm, scenic views, and vibrant community. Its proximity to Downtown San Diego and other urban areas makes it a desirable location for residents. Development Potential: The property offers the opportunity to build 3-6 three-story townhomes, and potentially more, depending on the revised plans. The fact that the lot can accommodate multiple units is a significant advantage for developers looking to maximize their investment. Architectural Plans: While the original architectural plans by Safdie Rabines Architects have expired, the architects are open to revisiting them providing flexibility for potential buyers. Developing new plans that take advantage of the views and the unique characteristics of the neighborhood could be an exciting prospect. Zoning and Regulations: It's important for developers to understand the zoning regulations and any restrictions that may apply to the property. The zoning designation of MCCPD-MR3000 suggests that the property is zoned for multi-residential development, which aligns with the proposed townhome project. Market and Demand: Understanding the demand for housing in Mission Hills and the broader San Diego area is crucial for assessing the feasibility and potential profitability of the project. Researching market trends, demographics, and buyer preferences can help inform the development strategy. Infrastructure and Utilities: Developers should consider the availability and accessibility of infrastructure and utilities such as water, sewer, electricity, and road access. Ensuring that these essential services are in place or can be easily connected to the property is essential for successful development. Environmental and Geotechnical Factors: Given the sloping nature of the double-sized lot, developers should conduct thorough assessments of environmental and geotechnical factors to identify any potential challenges or risks associated with the site. Community Engagement: Engaging with the local community and addressing their concerns and priorities can help facilitate the development process and foster positive relationships with neighbors and stakeholders. Overall...

Map Location

Listing provided courtesy of Javin Hope of The Agency. Last updated 2026-03-17 08:21:39.000000. Listing information © 2025 CRMLS.

Contact Us

Send a Message
admin Real estate 9:00 AM - 5:00 PM 9:00 AM - 5:00 PM 9:00 AM - 5:00 PM 9:00 AM - 5:00 PM 9:00 AM - 6:00 PM 9:00 AM - 5:00 PM 9:00 AM - 5:00 PM https://static.royacdn.com/Site-52cd8f66-c005-4ba2-8c82-efeb916fdc84/regal_properties.png Broker Associate # # # https://static.royacdn.com/Site-52cd8f66-c005-4ba2-8c82-efeb916fdc84/regal_properties.png