Property Detail

877 Island

San Diego CA 92101

$1,295,000

Status: Active

Property Details

Description

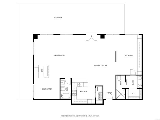
This LARGE Premier Parkloft residence features an expansive ~900 sq. ft. wrap-around balcony, creating a true extension of the living space and offering nearly 2,500 sq. ft. of combined indoor-outdoor living. Includes 2 side by side parking spaces, gym, and community center this building is rarely available! Located on the Northwest corner unit is ideal for entertaining — whether hosting friends before a Petco Park event or enjoying evenings beneath the glow of the city skyline. Inside, the open loft-style floor plan is highlighted by 10’6” ceilings, solid oak flooring, and thoughtfully curated custom upgrades throughout. The Studio Becker kitchen is both sleek and functional, featuring a gas range, new custom cabinetry with exceptional storage, and premium finishes. Additional highlights include in-unit washer and dryer, two 55” Sony OLED TVs, a built-in sound system, and custom lighting that sets the perfect ambiance. Exposed brick walls add warmth and character, while oversized windows seamlessly connect the interior to the outdoors. From the wrap-around balcony, enjoy live music drifting from nearby concerts or watch planes arrive from the east — all while double-pane windows provide a quiet, serene retreat indoors. Parkloft offers first-class amenities including two parking spaces, a 24/7 lobby attendant, fitness center, and a beautifully landscaped courtyard with BBQs — all located in the heart of East Village, just steps from Petco Park and the vibrant energy of Downtown San Diego. Please See AI edited photo for option to convert to a 1 Bedroom

Map Location

Listing provided courtesy of Katie Nelson of Compass. Last updated 2026-01-29 09:15:05.000000. Listing information © 2025 CRMLS.

Contact Us

Send a Message
admin Real estate 9:00 AM - 5:00 PM 9:00 AM - 5:00 PM 9:00 AM - 5:00 PM 9:00 AM - 5:00 PM 9:00 AM - 6:00 PM 9:00 AM - 5:00 PM 9:00 AM - 5:00 PM https://static.royacdn.com/Site-52cd8f66-c005-4ba2-8c82-efeb916fdc84/regal_properties.png Broker Associate # # # https://static.royacdn.com/Site-52cd8f66-c005-4ba2-8c82-efeb916fdc84/regal_properties.png