Property Detail

879 40th

Los Angeles CA 90011

$1,600,000

Status: Active

Property Details

Description

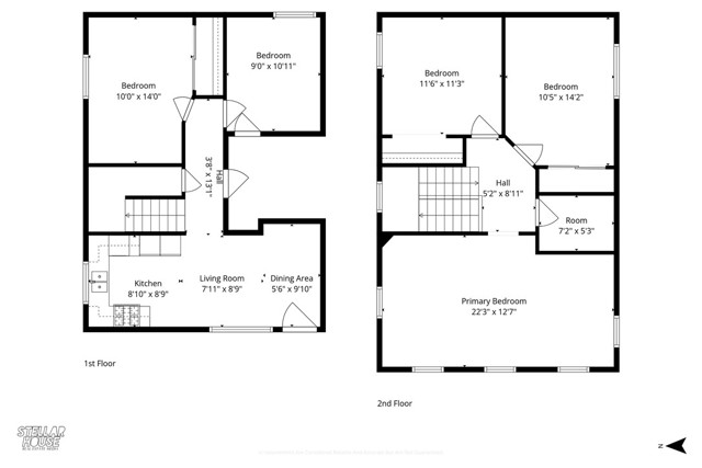
Exceptional Investment Opportunity To Acquire A Large Income-Producing 4-Unit Property In The High-Demand South Los Angeles / Downtown LA Rental Market. Well-Maintained Quadplex Offers 11 Bedrooms, 5 Bathrooms And Approximately 4,700 Square Feet Of Total Living Space On A 6,300± Square Foot Lot in LARD1.5-1 Zoning, Making It One Of The Larger Multifamily Assets In The Immediate Area. Unit1: 4Bed/2Bath Unit2: 3Bed/1Bath Unit3: 2Bed/1Bath Unit4: 2 Bed/1Bath. Additionally, With Rare Amenities Of 9 Total Private Parking Spaces (3 Covered Car Port Parking + 6 Private Uncovered – This Improves Tenant Retention And Value As Parking Is Sparse In The Area. Individually Separately Metered For Gas And Electricity. The Property Was Fully Rebuilt In 2006 And Has Received Recent Minor Updates, Providing Investors With The Benefit Of Modernized Construction Relative To Surrounding Vintage Housing Stock, Improved Structural Integrity, And Reduced Capital Expenditure Requirements. Interior Features: Shaker Kitchen Cabinets, Newer Paint, Newer Flooring, Newer Windows, Newer Sinks, Newer Bathroom Vanities, Newer Showers, Recessed Lighting, And Modern Fixtures. Ground Floor Laundry Area In Ground Floor Unit #879 With Access To Exterior (Could Be Transformed Into Shared Laundry With Coin-op Laundry, Adding Additional Income). The Property Is Fully Rented, Currently Generating Approximately $7,700 Per Month In Gross Rental Income, Offering Stable Cash Flow From Day One. With The Strong Demand For Affordable Housing In The 90011 Corridor, The Asset Presents A Compelling Opportunity For Continued Rental Growth Through Strategic Rent Adjustments, Improved Management, Or Unit Upgrades. Actualize The Development And Density Potential Upside With Improving Rental Income By ADU Development (2-4 ADU Possible), Carport Conversions, Redevelopment Utilizing LA And State Housing Incentives For Higher Density Housing + Transportation Area Incentives. RD1.5-1 Zoning, Transit Oriented Communities (TOC Tier 1), ZI-2374 State Enterprise Zone LA, Transit Oriented Incentive Area 1 (TOIA). Well Positioned – Very Close To USC, Future Olympics Location, Major Transportation Corridors, Retail And Employment Hubs. Ideal For Investors, 1031 Exchange Buyers, Value-Add Builders, Developers Seeking Rental Market With Prime Unit Mix In TOC Zone (8-12 Units Possible) With Rental Pro-Forma Of Approximately $27,600 Per Month After Redevelopment. Your Investment Opportunity Is Here, Call Listing Agent NOW!

Map Location

Listing provided courtesy of Justin Yee of eXp Realty of Southern California, Inc. Last updated 2026-03-17 08:18:18.000000. Listing information © 2025 CRMLS.

Contact Us

Send a Message
admin Real estate 9:00 AM - 5:00 PM 9:00 AM - 5:00 PM 9:00 AM - 5:00 PM 9:00 AM - 5:00 PM 9:00 AM - 6:00 PM 9:00 AM - 5:00 PM 9:00 AM - 5:00 PM https://static.royacdn.com/Site-52cd8f66-c005-4ba2-8c82-efeb916fdc84/regal_properties.png Broker Associate # # # https://static.royacdn.com/Site-52cd8f66-c005-4ba2-8c82-efeb916fdc84/regal_properties.png