Property Detail

420 Capitola Road

Santa Cruz CA 95062

$3,800,000

Status: Active

Property Details

Description

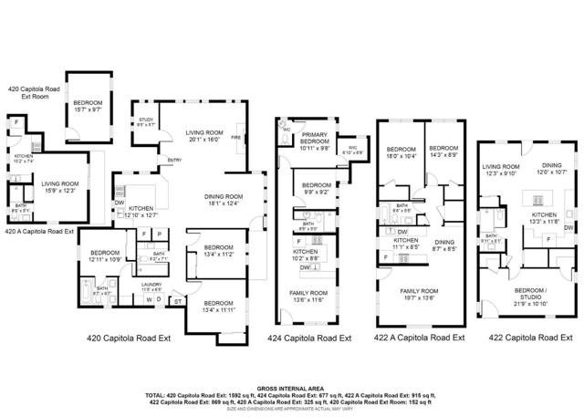
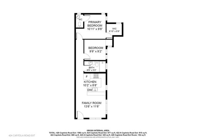
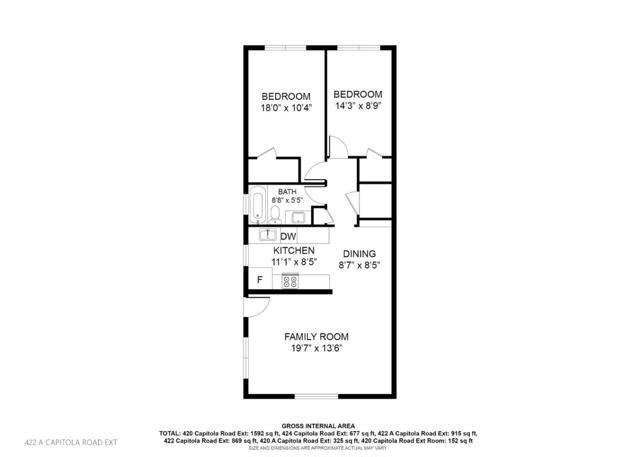
Turnkey multi-unit investment opportunity in a convenient Midtown Santa Cruz location. The property features five residential units across three structures plus a vacant rear portion of the parcel offering potential for future development. Unit mix includes a 3BR/2BA single-family home (420 Capitola Rd Ext) with an attached studio (420A), a detached 1BR/1BA home (422), and a duplex with a 2BR/1BA unit (422A) and a 2BR/1.5BA unit (424) sharing one wall. Additional improvements include covered parking, a shared laundry area, and several accessory structures. The parcel is primarily designated Urban Medium Residential and zoned RM-4, providing potential flexibility for multi-family housing uses. Well located near Midtown Santa Cruz, Ocean Street, Downtown, and area beaches, with convenient access to shopping, dining, and commuter routes. The property has a strong rental history and currently operates as a solid five-unit income property with ample open space and long-term upside potential, including the possibility for future expansion or larger-scale development. Buyer to verify zoning, and development potential with appropriate government agencies.

Map Location

Listing provided courtesy of Kasey Hinchman of David Lyng Real Estate. Last updated 2026-03-17 08:11:11.000000. Listing information © 2025 CRMLS.

Contact Us

Send a Message
admin Real estate 9:00 AM - 5:00 PM 9:00 AM - 5:00 PM 9:00 AM - 5:00 PM 9:00 AM - 5:00 PM 9:00 AM - 6:00 PM 9:00 AM - 5:00 PM 9:00 AM - 5:00 PM https://static.royacdn.com/Site-52cd8f66-c005-4ba2-8c82-efeb916fdc84/regal_properties.png Broker Associate # # # https://static.royacdn.com/Site-52cd8f66-c005-4ba2-8c82-efeb916fdc84/regal_properties.png