Property Detail

9964 La Mesa

Rancho Cucamonga CA 91701

$770,000

Status: Active

Property Details

Description

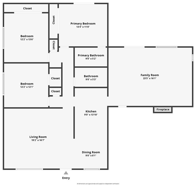
Tucked in at a quiet cul de sac in the Alta Loma community of Rancho Cucamonga, 9964 La Mesa Court offers the kind of setting that makes coming home feel easy. Framed by scenic mountain views and surrounded by a well-established residential neighborhood, this single-story home blends comfort, flexibility, and convenience in one of the area’s most sought after locations. Inside, the home is designed for the way people live today, with three bedrooms, two remodeled bathrooms, a spacious living room, and a versatile Flex Room with its own fireplace. Whether you envision a bonus room, home office, fourth bedroom, media room, or play space, this extra area gives you room to adapt and grow. Recent updates bring a fresh feel throughout, including new flooring in the Flex Room, a new stove, fresh interior paint, new exterior trim, and refreshed landscaping that adds to the home’s inviting curb appeal. Set on a cul de sac, the property offers a sense of privacy and a quieter street setting that many buyers love. The widened driveway, side RV parking, and double wrought iron gate add flexibility for extra vehicles, recreational storage, or weekend adventure gear. Life at 9964 La Mesa Court also means enjoying the best of Rancho Cucamonga while being rooted in the charm of Alta Loma. From nearby shopping, dining, and entertainment at Victoria Gardens to convenient access to Chaffey College, parks, trails, and major freeways, the location supports both daily convenience and an active lifestyle. The Alta Loma community is especially loved for its established feel, mountain backdrop, and access to highly regarded schools, making it a destination for buyers seeking both lifestyle and long-term value. With low taxes, no Mello Roos, and no HOA, 9964 La Mesa Court offers a rare combination of freedom, function, and location. This is a home with flexibility inside, space outside, and a setting that captures the very best of Alta Loma living in Rancho Cucamonga.

Map Location

Listing provided courtesy of Sheila Drew-Craig of The Boutique Real Estate Group. Last updated 2026-03-22 08:16:16.000000. Listing information © 2025 CRMLS.

Contact Us

Send a Message
admin Real estate 9:00 AM - 5:00 PM 9:00 AM - 5:00 PM 9:00 AM - 5:00 PM 9:00 AM - 5:00 PM 9:00 AM - 6:00 PM 9:00 AM - 5:00 PM 9:00 AM - 5:00 PM https://static.royacdn.com/Site-52cd8f66-c005-4ba2-8c82-efeb916fdc84/regal_properties.png Broker Associate # # # https://static.royacdn.com/Site-52cd8f66-c005-4ba2-8c82-efeb916fdc84/regal_properties.png