Property Detail

24873 Edelweiss

Crestline CA 92325

$355,000

Status: Active

Property Details

Description

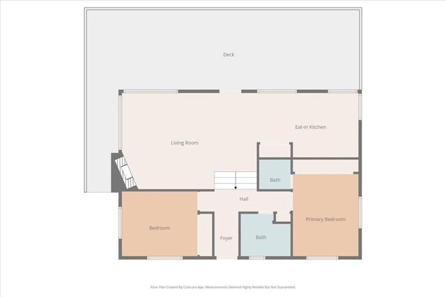
Charming and full of character, this 2-bedroom, 1.5-bath home offers a comfortable layout and a true mountain feel just minutes from Lake Gregory. Inside, you’ll find warm wood flooring and a spacious living room featuring high beamed ceilings, a brick fireplace, and built-in bench seating—creating a cozy yet open space that stands out. The living area flows into the kitchen and dining space, which opens directly to a large private deck, perfect for entertaining or relaxing outdoors. Recent updates include fresh interior paint and a new water heater, making the home move-in ready. The adjacent vacant lot provides added privacy and a more open, peaceful setting—a rare bonus for the area. One of the standout features of this home is the exceptional parking—something that’s hard to find on the mountain. Enjoy the convenience of being able to pull right up to the front door, making unloading groceries, luggage, or weekend gear quick and easy. Whether you’re looking for a full-time home, weekend escape, or investment opportunity, this property offers comfort, charm, convenience, and a prime location close to shopping, dining, and outdoor recreation at Lake Gregory.

Map Location

Listing provided courtesy of Harley Adams of DYNASTY REAL ESTATE. Last updated 2026-03-20 08:26:07.000000. Listing information © 2025 CRMLS.

Contact Us

Send a Message
admin Real estate 9:00 AM - 5:00 PM 9:00 AM - 5:00 PM 9:00 AM - 5:00 PM 9:00 AM - 5:00 PM 9:00 AM - 6:00 PM 9:00 AM - 5:00 PM 9:00 AM - 5:00 PM https://static.royacdn.com/Site-52cd8f66-c005-4ba2-8c82-efeb916fdc84/regal_properties.png Broker Associate # # # https://static.royacdn.com/Site-52cd8f66-c005-4ba2-8c82-efeb916fdc84/regal_properties.png