Property Detail

1097 Massachusetts

Beaumont CA 92223

$479,000

Status: Active

Property Details

Description

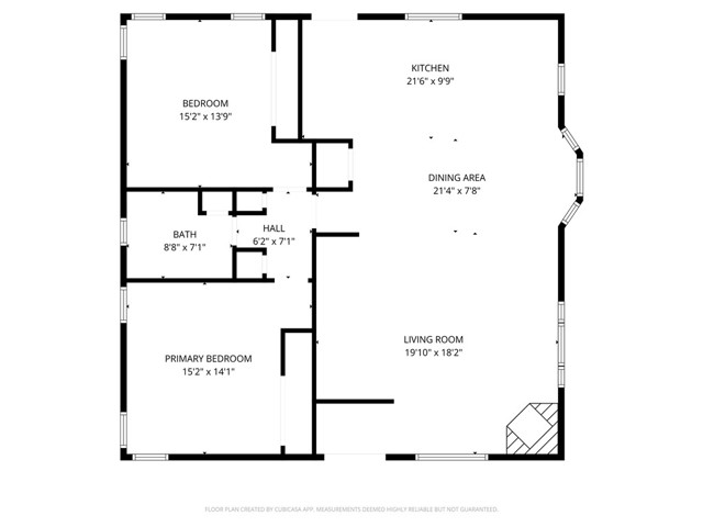
Upgraded with Owned solar, an additional Building with ADU potential, large lot and RV parking. This beautiful home has a spacious open floor plan layout. Upon arrival the upgraded windows, newer roof, extended driveway and well-maintained exterior will have you excited to see inside. The vinyl plank flooring starts at the entry and runs throughout all the common areas. The large Livingroom features a welcoming fireplace, a natural wood feature wall and there is an abundance of natural light due to the oversized upgraded windows. The kitchen, dining area and living room are all open to each other making this the perfect space to host large groups. The kitchen features white cabinets and a large walk-in pantry. There is an oversized laundry/utility room just beyond the kitchen that could be an office, exercise room or craft room. The bedrooms are oversized with large closets. The full bathroom is conveniently located just off the hallway to the bedrooms. The home has a large solar power system that is owned and reduces the cost of living along with upgraded electrical panels to the main home, garage and workshop/possible ADU. There is an electrical car charger at the driveway as well as RV hook-ups. The detached garage is the perfect car lovers' space with a sliding rear door that opens up to the "man cave"/ party space. The additional structure has a toilet as well as plumbing in place to add sink/shower along with a Mini split that is ready to be installed. This space is a large open room with storage area, finished concrete floors and has the potential to possibly be converted into a 2nd dwelling. There is a large shed for additional storage located in the spacious rear yard. This home is a must see with all the upgrades and features it has to offer. Located in a quiet neighborhood with easy access to restaurants and shopping. Beaumont is located with easy access to Riverside, Ontario and beyond and a short commute to Palm Springs and the Desert communities.

Map Location

Listing provided courtesy of COLLEEN HORGAN of COLDWELL BANKER REALTY. Last updated 2026-03-23 08:15:40.000000. Listing information © 2025 CRMLS.

Contact Us

Send a Message
admin Real estate 9:00 AM - 5:00 PM 9:00 AM - 5:00 PM 9:00 AM - 5:00 PM 9:00 AM - 5:00 PM 9:00 AM - 6:00 PM 9:00 AM - 5:00 PM 9:00 AM - 5:00 PM https://static.royacdn.com/Site-52cd8f66-c005-4ba2-8c82-efeb916fdc84/regal_properties.png Broker Associate # # # https://static.royacdn.com/Site-52cd8f66-c005-4ba2-8c82-efeb916fdc84/regal_properties.png